Land Registry Compliant Lease Plans for Residential & Commercial Property

Lease Plans Online Ltd are experienced plan providers offering a professional, fast and friendly service. We can work remotely from existing drawings (nationwide) or carry out measured site surveys across London and the Home Counties, with regular coverage across North London.

Whether you require residential or commercial lease plans for flats, houses, apartments or commercial buildings, plans for a deed of variation, title plans for a transfer of land, or commonhold plans for a new development, we are here to help.

If you’re unsure what you need, just give us a call and we can talk through the process. We can often turn plans around in 24-48 hours if you’re in a rush, so please let us know if it's urgent.

We aim to be one less stress in your property transaction. You can read our reviews to see how we’ve supported clients across London and the South East.

Remote-from-drawings available Typical delivery: 48 hrs

How it Works

A straightforward, well-managed process designed to keep your property transaction moving smoothly.

Start now
1
Call, text, or email

Explain what you need. We advise next steps, quote and set timescale.

2
Site visit or send drawings

Book a site visit (if required) or send existing drawings for us to work from.

3
Plan(s) prepared

Land Registry compliant plans (including embedded OS map) drafted clearly and accurately

4
Delivered by email

Final scaled PDF plans supplied. Amendments handled quickly.

Call / Text See pricing

What Clients Say

Independent feedback from clients who value clarity, responsiveness and reliable delivery.

Get a quote
Image shows property for which Lease Plans Online have recently provided plans | Testimonial 1

“Simply exceptional. Speed was rather unbelievable really — couldn’t believe she turned it round so quickly, versus what other people were quoting. And she is clearly very smart and understands this space and Land Registry requirements exceptionally well. Wow.”

Stella

Image shows property for which Lease Plans Online have recently provided plans | Testimonial 2

“Outstanding service from Lease Plans Online. We urgently needed plans to accompany a new lease for a complex flat sale involving a freehold… from first contact to completed plans and payment — all within 12 hours. Absolutely seamless. Highly recommended.”

Lee

Image shows property for which Lease Plans Online have recently provided plans | Testimonial 3

“Super quick turnaround and really great quality of work, understood my brief and was even there to help support what plans I needed. Will be coming here again if I need any more work done.”

Nick

Image shows property for which Lease Plans Online have recently provided plans | Testimonial 4

“Easy to work with and offers a very quick service that helped me in a time pressured situation to get a new purchase over the line. The plans designed were excellent and I'd highly recommend.”

Anthony

Image shows property for which Lease Plans Online have recently provided plans | Testimonial 5

“I’m dealing with some lease changes and the process is slow and torturous — but Gabrielle was quick, communicative and the easiest and best part of the whole process — even calling on a Sunday to check a detail. Brilliant service.”

Keith Bernstein

Reviews

Trusted by homeowners, solicitors and developers across London and the UK.

4.7★★★★★ Trustpilot

Prices

Full pricing details are available on the Prices page. If you’re unsure which service applies, we’re happy to advise.

Lease Plans (with site survey)

From £195 (plus VAT)

Measured site survey and fully compliant lease plan, including OS mapping, solicitor liaison and amendments, delivered efficiently.

Title Transfer Plans

From £125 (plus VAT)

HM Land Registry compliant transfer plans, with OS mapping and amendments included.

Common Questions

Clear answers to common questions about lease plans, transfer plans and Land Registry requirements.

Do I need a site visit? +

Not always. If suitable drawings are available, a compliant plan can often be prepared remotely. Where drawings are unavailable, incomplete, or their accuracy cannot be confirmed, a measured site visit is usually the best approach.Site surveys are arranged efficiently across London and the Home Counties - and, where required, further afield - and are typically straightforward, often taking as little as 15–20 minutes for simpler properties such as flats, apartments and houses, as well as commercial property and buildings.

Do you prepare lease plans for different types of property? +

Yes. Lease Plans Online prepares HM Land Registry compliant lease plans for a wide range of property types, including flats, apartments, houses, commercial property and larger buildings. Each property presents slightly different requirements, particularly where shared areas, gardens, roof spaces or parking arrangements are involved. Whether the instruction relates to a single residential flat, a converted house, or part of a larger commercial building, plans are prepared carefully to reflect the extent of the property being demised and to meet current HM Land Registry requirements. If you’re unsure what type of plan is required for your particular property, you’re always welcome to get in touch to discuss the details before proceeding.

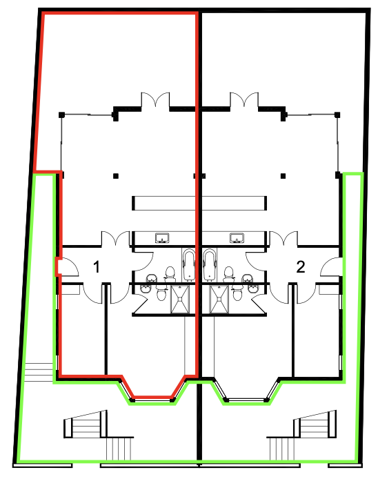
What makes a lease plan compliant? +

A lease plan is considered compliant when it meets HM Land Registry requirements for registration. This includes being drawn to recognised scale, clearly showing the extent of the property being demised, including a north point, providing sufficient surrounding detail for identification, and aligning precisely with the wording of the lease. The plan must clearly define what is included within the lease and, where relevant, what is excluded. Clarity and consistency are essential - particularly where roof spaces, loft conversions, gardens, parking spaces or shared areas are involved.Gabrielle has over 20 years’ experience preparing lease plans for registration and works carefully to ensure each plan is produced with compliance in mind from the outset. Plans are prepared in a format regularly accepted by HM Land Registry, helping to minimise delays and avoid unnecessary requisitions. Where solicitors, conveyancers or HM Land Registry request clarification or amendments, these are handled promptly and professionally. Clear communication and attention to detail are central to the process, helping keep transactions moving smoothly. If you’re unsure whether your existing plan meets the necessary standards, early advice is always welcome.

Will HM Land Registry accept my plan?+

Plans are prepared carefully in line with current HM Land Registry requirements, including recognised scale, clear edging, appropriate Ordnance Survey base mapping and alignment with the associated legal documentation.Gabrielle has over 20 years’ experience preparing lease and transfer plans for registration, with a strong track record of acceptance. The focus is always on producing plans correctly the first time, helping reduce the likelihood of requisitions or delays.If clarification or minor amendments are requested by HM Land Registry or your solicitor, these are handled promptly and professionally. Clear communication at the outset — particularly where unusual layouts, roof spaces or shared areas are involved — helps ensure smooth registration.If you’re unsure whether your existing plan will be accepted, you’re welcome to send it across for review before proceeding.

Can you work directly with my solicitor or conveyancer?+

Yes. Lease Plans Online regularly works with solicitors, conveyancers, managing agents and developers, ensuring plans align precisely with the legal documentation and transaction requirements.Where required, Gabrielle is happy to liaise directly with your legal representative to confirm wording, title references, or specific registration points before finalising the plan. This collaborative approach helps avoid unnecessary revisions and keeps matters progressing efficiently.Many instructions arise at time-sensitive stages of a property transaction. Clear communication between all parties helps ensure plans are prepared accurately and delivered on time.If you would prefer us to coordinate directly with your solicitor, simply let us know at the outset.

How quickly can you deliver?+

Turnaround times depend on the type of plan required, the size and complexity of the property, and whether a site visit is needed. Where suitable drawings are available, remote lease plans and transfer plans can often be prepared within 24-48 hours. For plans requiring a measured site survey, delivery is typically within 48-56 hours following the visit. Simpler properties may be completed even sooner.Many instructions come at time-sensitive stages of a transaction - for example, ahead of exchange or completion. Where deadlines are tight, every effort is made to prioritise urgent matters, and same-week delivery is frequently achieved.Gabrielle has built a strong reputation for responsive communication and reliable turnaround, with clients often commenting on both the speed and clarity of the process. If your matter is urgent, simply let us know at the outset and we’ll confirm realistic timescales before proceeding.As always, the aim is to deliver efficiently without compromising accuracy or compliance.

What do I receive once my Land Registry plan is prepared?+

Once your plan is finalised, you will receive a professionally prepared, HM Land Registry compliant drawing in PDF format, suitable for submission to your solicitor, conveyancer or directly to HM Land Registry (where appropriate). Your completed plan will typically include:

  • A clearly scaled floor plan
  • A location plan based on Ordnance Survey mapping
  • Accurate edging of the demised or transferred area
  • A north point and scale reference
  • Clear labelling aligned with the lease or transfer documentation

Plans are prepared with registration in mind from the outset, helping reduce the likelihood of requisitions or delays. If your solicitor or HM Land Registry requests clarification or minor amendments, these are handled promptly and professionally. Gabrielle works regularly with solicitors, conveyancers and developers, ensuring drawings align precisely with the legal documentation.The aim is not simply to deliver a drawing - but to provide a clear, compliant plan that supports a smooth property transaction. If you’re unsure what format is required for your particular situation, early discussions are always welcome.

About Gabrielle

Over 20 years’ experience preparing compliant plans for homeowners, solicitors and developers across London and the UK.

About Gabrielle Boucher

For the last 20 years, I have been providing expertly prepared Land Registry compliant lease plans to clients in London and the Home Counties. I’ve worked hard for my excellent Google rating and take great care in providing a fast, professional service. Plans start from just £125+VAT, and I provide regular support across North London as well as the wider London and Home Counties area. If you need a lease plan, please get in touch.

Contact

If you’d like to discuss your requirements or request a quotation, enquiries are always welcome.

Send a Message